3-Zimmer Wohnung in Bergheim
Beschreibung
Diese hochwertige 3-Zimmer Wohnung, die ab sofort bezugsfertig ist, befindet sich in einem 9-Parteienhaus in Bergheim.
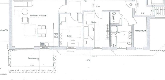
Die großzügig geschnittene 107 qm große Wohnung besteht aus 2 Schlafzimmern, einem schönen, lichtdurchfluteten Wohn- und Essbereich, einem Badezimmer mit ebenerdiger Dusche und Badewanne, einem Gäste-WC und einem Hauswirtschaftsraum mit Waschmaschinen- und Trockneranschluss.
Das gesamte Objekt ist barrierefrei, rollstuhlgerecht und in Massivbauweise errichtet.
Der Aufzug bringt Sie von Ihrem Parkplatz in der Tiefgarage direkt zu Ihrer Etage.
Auf der Terrasse mit kleinem privaten Gartenanteil lässt es sich wunderbar erholen.
Ausstattung
- KFW 40 (Niedrigenergiehaus mit Pelletheizung)
- hochwertige Ausstattung
- Fußbodenheizung
- modernes Lüftungssystem
- elektrische Rollladen
- Videosprechanlage
- offener Wohn- und Essbereich
- moderner Fliesenboden im Badezimmer und Wohnbereich
- pflegeleichter Vinylboden in den Schlafräumen
- Terrasse mit privatem Garten und Gemeinschaftsgarten
- Waschmaschinen- und Trocknerstellplatz in der Wohnung oder in der Waschküche
- privater Kellerraum
- Tiefgaragenstellplatz
- 9 Parteien
- Hausmeisterbetreuung
Lage
Das Objekt befindet sich in ruhiger Wohngegend unmittelbar am rekultivierten Tagebau gelegen. Dieser lädt zu langen, gemütlichen Spaziergängen ein.
Fußläufig erreichbar sind ein Fitnessstudio, ein Gymnasium, eine Grundschule und ein Kindergarten.
Bis zur Fußgängerzone mit ihren diversen Geschäften und Lebensmittelläden sind es ca. 15 min Fußweg.
Der nächste Bahnhof mit einer Verbindung nach Köln ist in 20 min und die nächste Bushaltestelle in 3 min zu erreichen.
Die Autobahnauffahrt A61 erreichen Sie innerhalb von 10 min.
Bei Interesse schreiben Sie uns eine Mail mit ihren Kontaktdaten an mieten@ruland.de




